零畸变,零门槛|OPT(奥普特)发布扫描测量传感器

OPT(奥普特)新发布的扫描测量传感器SmartScan系列机型,专为平面2D检测而研发,广泛应用于铝型材、板材、卷材、电池制造、PCB板、服装制版、纺织材料、薄膜类检测等行业。新品内置接触式图像传感器(CIS),成像无畸变;搭配测量软件,导入图档无需编程即可自动生成测量程序,集精准、高效、易用于一体。
扫描测量传感器采用接触式图像传感器,集光源、镜头、光电转换芯片为一体,利用柱状透镜,实现物体与感光元件1:1成像,能避免由于图像畸变及边缘虚化所带来的分辨率损失问题,同时可减轻后续图像处理环节的负担。
不仅于此,扫描测量传感器还能提供高分辨、低噪声及更广泛的动态范围,而且搭配照明系统光照均匀,不易产生反光现象,尤其适用铝型材行业尺寸测量,其分辨率达1200dpi。
扫描测量传感器检测幅宽最大可达500mm,且测量精度不会受到幅宽的影响;同时,还能避免因拼接相机时的高度、角度不一致而出现引起标定面倾斜及图像不同轴丢失重叠等,采集的图像还原度更高。
保证精度的同时,扫描测量传感器还高度契合了工业在线检测需求,采用Cameralink接口,配合采集卡,数据传输速度可达480MB/s,同时,还通过搭载0.1μm高精度移动平台,实现快速移动扫描。
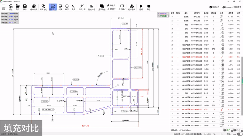
扫描测量传感器搭配的测量软件,是基于OPT Smart3底层代码开发而来,算法性能稳定,支持离线自动编程,一键点击鼠标即可自动识别CAD图纸,快速生成测量程序并获得全尺寸测量报告。
测量程序智能匹配
在测量过程中,扫描测量传感器还可自动识别程序,避免查找核对图纸,也可导入离线程序进行二次编辑;并提供点、线、圆等多种手动测量元素,可快速辅助完成特殊位置检测。同时,还与CAD制图软件兼容,无须切换软件,方便简单。
扫描测量传感器还配备了壁厚尺、米重、截面积、位置度、直线度、轮廓偏差等二十余项测量工具,支持对比填充、图形匹配测量、自动对齐功能,零基础也能轻松上手操作。
即使没有CAD图纸和程序,扫描测量传感器仍可对来料测量距离、直径、半径、壁厚、角度、形位公差等尺寸;同时还支持逆向工程,可扫描来料进行自动拟合成直线、圆弧,并导出DXF 格式文件,节省手动测量和输出图纸的时间。
支持无图纸测量&逆向工程
同时,针对局部变形的ky开元(中国),扫描测量传感器也能进行重新定位,智能识别测量位置,还可多基准自由创建匹配模拟,分析关键点位与CAD图形偏差,让测量更加准确。
此外,扫描测量传感器运行时无需连接外网,保证数据安全,而且测量数据统计分析直观,能实时观察工件变化,报告还可无缝上传企业ERP系统或微信小程序,方便用户随时查看检测报告。
实时观察数据变化
CN
EN
JP






手机请直接输入:
座机前加区号:+86-0769-82716188-251


